Public Consultation
 
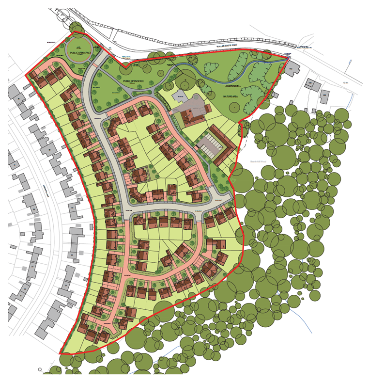
Propsco Limited are preparing to submit an outline planning application to Cheshire West and Chester Council in autumn for around 96 homes, on land at Beach Farm, off Wallerscote Road, to the southeast side of Weaverham.
We are keen to hear your views prior to finalising the proposals. Your views are important and will help to inform our plans.
The proposed development is shown on the plan above. It would provide private market and affordable homes for local people, along with public open space.
There would be a range of house types and tenures, including housing suitable for smaller households, first time buyers and families. It is proposed that 45% of the houses would be affordable dwellings. Further details of the proposed housing mix would be presented at the application stage.
The site also includes the existing farmhouse at Beach Farm in the northeast along with conversion of the adjacent barn.
Vehicular access to the site would be from a new access point on Wallerscote Road. The site would have pedestrian and cycle routes providing high quality, sustainable connectivity both within the site and to the wider key facilities within Weaverham. There would be a pedestrian link to Keepers Lane via the existing connection to the northwest corner of the site. There would also be a connection to the wider footpath network to the northeast.
Knights are Lone Star Land Limited’s appointed planning consultants and will be responsible for submitting the planning application.
The following consultants have been appointed by Lone Star Land Limited to work alongside Knights to prepare the technical documents which will form the planning application:
|   Technical Specialism  |   Consultant  | 
|   Town Planners  |   Knights  | 
|   Architectural Work  |   Barrie Newcombe Associates  | 
|   Transport and Highways  |   SCP  | 
|   Drainage  |   Waterco  | 
|   Ecology Report  |   Ascerta  | 
|   Arboricultural Report  |   Ascerta  | 
|   Geo-technical desktop report  | Betts Associates | 
The proposal would bring about a number of significant public benefits, these include the following:
Affordable Housing: 45% of the dwellings would be for affordable housing, which is above the 30% policy requirement in the Local Plan. This would mean that approximately 43 new affordable homes are to be occupied by people who may not otherwise be able to afford to their own home. These units are to be distributed across the site.
Local jobs: both construction jobs on the site, and also expenditure with contractors and suppliers.
Public Open Space: Around 0.28ha of public open space is proposed, including an equipped play area, along with general amenity space. The public open space is proposed to be mainly located to the north of the site providing an attractive area with good connectivity to the adjacent housing and the wider village via the footpath link to Keepers Lane.
A footpath link is proposed towards the northeastern corner of the site connecting to Wallerscote Road and the existing Public Footpath beyond.
Biodiversity: an area of around 0.3 ha to the northeast of the site is proposed to be left wild and enhanced as a nature / bio-diversity area, meeting the 10% Biodiversity Net target.
We would welcome feedback on the proposals from the community so that views can be considered prior to the formal submission of a planning application to the Local Planning Authority.
You can provide your comments by submitting this survey* by Sunday 10 August 2025.
Once the planning application has been submitted, the Council will undertake a formal consultation exercise, where you will again have the opportunity to make comments directly to the Council which would be taken into account in the determination of the planning application.
*Please see our Client Data Protection Policy.
 
If you have any queries in relation to this scheme, then please contact Senior Associate Matthew Wedderburn (Knights)
Mobile: 07824 862262
Email: matthew.wedderburn@knightsplc.com
Address: Knights, HQ Offices, 58 Nicholas Street, Chester, CH1 2NP